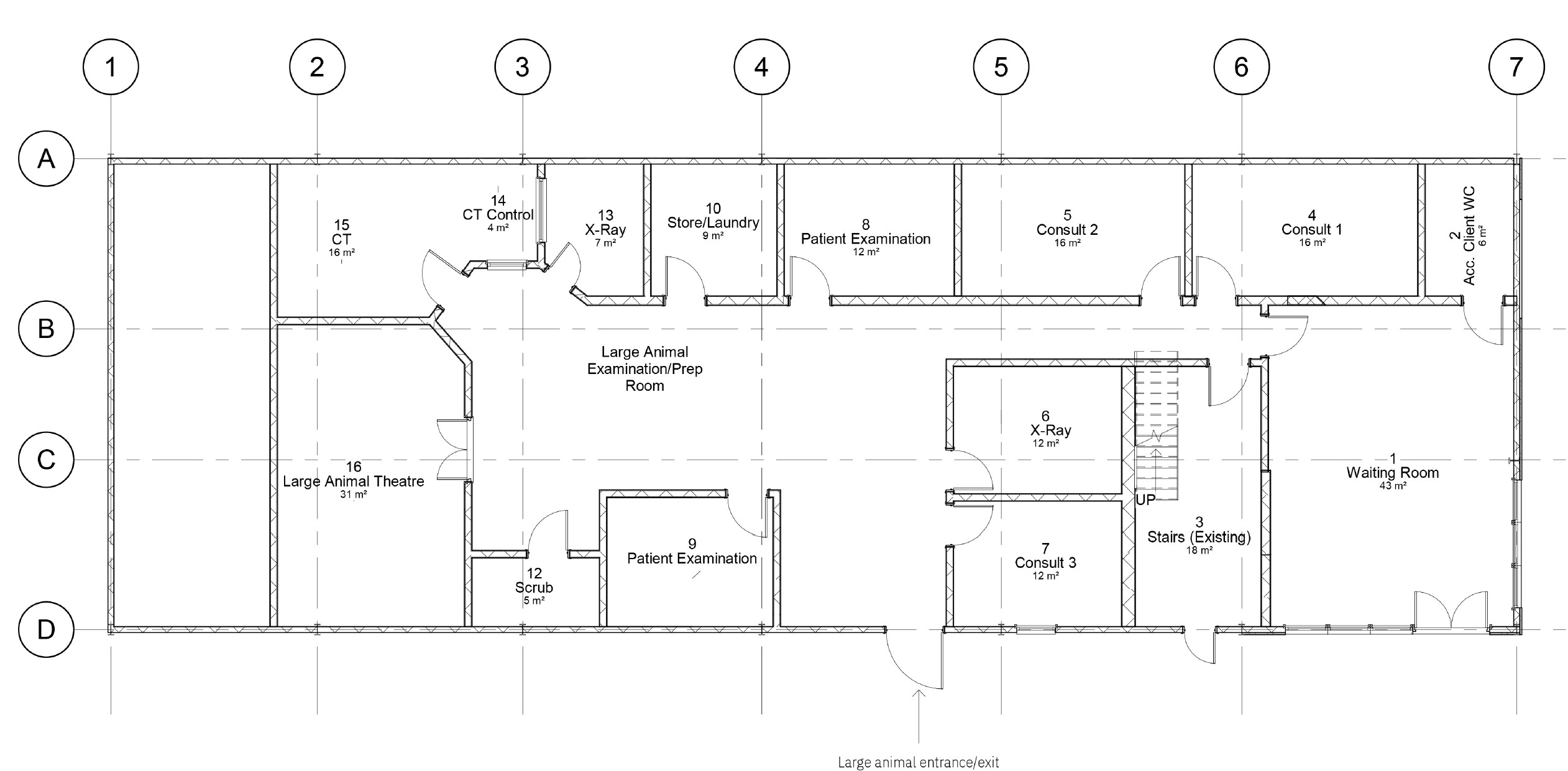
We have been employed to design a new (cardiology) veterinary surgery within an existing unit within Pant Wilkins Stables business park.
We have obtained full planning permission for the scheme and are currently out to tender.
We have been employed to design a new (cardiology) veterinary surgery within an existing unit within Pant Wilkins Stables business park.
We have obtained full planning permission for the scheme and are currently out to tender.